华科创智新办公室、实验室装修项目服务单位招标公告
发布时间:2026-01-15作者:华科创智-官网
华科创智新办公室、实验室装修项目
服务单位招标公告
一、项目概况与招标范围
1.项目名称:
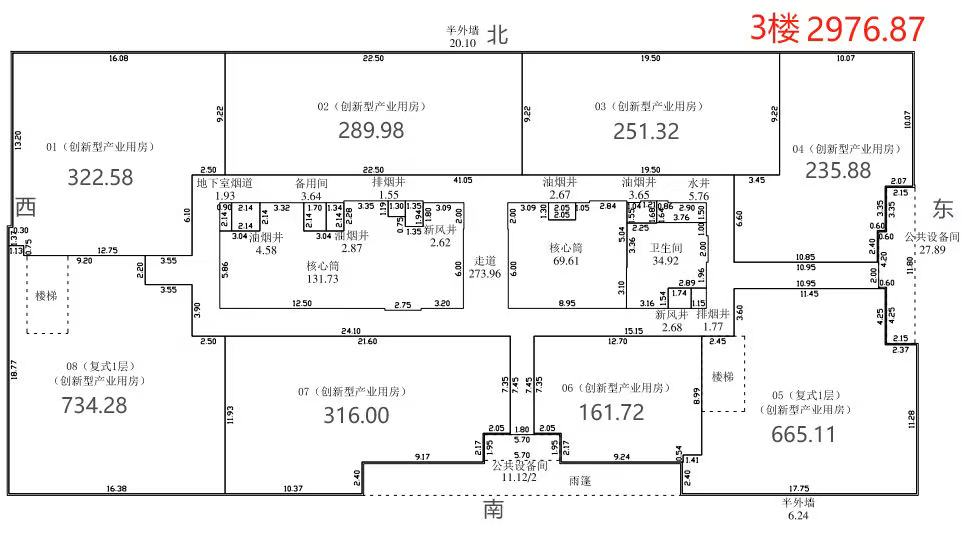
1) [深圳市华科创智技术股份有限公司]三楼实验室装修项目
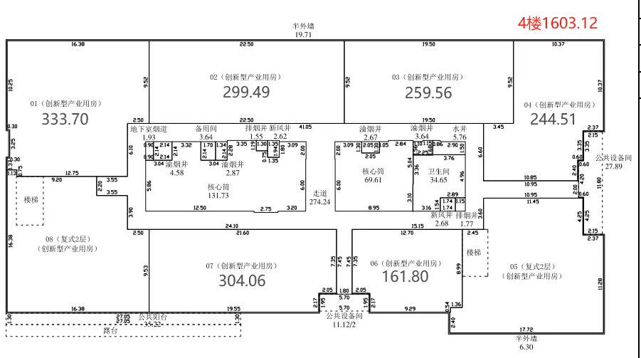
2) [深圳市华科创智技术股份有限公司]四楼办公室装修项目
2.项目地址:南山区沙河西路3157号南山智谷产业园E栋3-4层01-08
3.工程概况:项目为两层建筑,总面积约4107.3㎡。其中,第三层为新材料实验室区域,面积约2043㎡;第四层为办公区,面积约2064.4㎡。
4.招标范围:本项目采用三楼实验室、四楼办公室一体招标,分别报价,“设计+施工”一体化模式公开招标。
二、服务内容
项目平面布局规划、项目设计、项目施工、项目采购等。
三、报名单位资格要求
1.基本资格:在中华人民共和国境内注册,具有独立法人资格和有效的营业执照。
2.专项资质(关键):
1) 设计资质:具备建筑装饰工程设计专项乙级及以上资质,或建筑行业(建筑工程)设计乙级及以上资质。
2) 施工资质:具备建筑装修装饰工程专业承包二级及以上资质,同时必须具备建筑工程施工总承包三级及以上资质。
3) 安全许可:具备有效的安全生产许可证。
3.类似项目经验:投标人须提供近五年内至少2个类似的、特别是包含化学或生物类实验室的装修工程业绩证明(以合同或中标通知书为准)。
4.财务与信誉:近三年财务状况良好,无重大违法记录,未被列入失信被执行人名单。
四、报名要求
由企业法定代表人或法定委托人持以下资料报名:(1)法定代表人证明书(复印件加盖单位公章);(2)公司营业执照副本(复印件加盖单位公章);(3)公司资质证书副本(复印件加盖单位公章);(4)公司概况;(5)相关资质证件(复印件加盖单位公章);(6)报价方案文件(格式自定、附报价依据)。
五、服务单位确认
根据报名情况对服务机构进行资质审查,对参加报名机构的资质条件、服务能力、社会信誉、服务方案和价格等方面进行综合评审,采用集中讨论方式择优选定一家符合条件的机构作为本项目服务单位,未获得该服务的单位不再另行通知。
六、报名时间
2026年1月15日至2026年1月19日,上午9:00时至18:00时,报名材料发送至工作人员邮箱:li.dahui@huake-tek.com。报名以收到邮件的日期为准,逾期未收到,不予受理。
联系人:李先生(18688712966)
深圳市华科创智技术股份有限公司
2026年1月14日
附图1:3楼实验室原图

附图2:4楼办公室原图

相关资讯
- 百亿市场风口!华科创智纳米银线星空顶,重新定义车载豪华新标杆2026-01-15
- 华科创智新办公室、实验室装修项目服务单位招标公告2026-01-15
- 喜报 | 华科创智喻东旭入选“最高人才计划”,纳米银领军人才赋能江西产业升级2025-12-15
- 破解锂电行业“生死关”,压力检测才是安全与性能的核心密码2025-12-29
- 科技守护洁净,纳米银赋能智慧生活——华科创智抗菌系列产品助力现代家庭健康革命2025-12-29
- 技术出海引关注!华科创智携核心新材料亮相2025首尔国际新材料展2025-10-16
- 喜讯!华科创智荣膺“卓越贡献奖”,共赴科技强湾新征程2025-09-30
- 双榜加冕丨华科创智联合创始人温维佳教授再获全球前2%顶尖科学家认证2025-09-30
- 董事长喻东旭在华科创智成立11周年庆典上的讲话2025-09-03
- 华科创智11周年庆:与国同频,共启新程!2025-09-03